Ampio appartamento in zona servita, pronto da vivere

Riferimento

T31679

Superficie

108 mq

N° Locali

3.0

N° Camere

2

N° Bagni

1

Prezzo

€ 155.000

DETTAGLI IMMOBILE

  • Tipo proprietà : Appartamento
  • Giardino : No
  • Località : Piacenza
  • Classe Energetica : E
  • EPgl,nren : 232.8
  • Contratto : Vendita
  • Distanza dal centro : N.D. m
  • Posto Auto : Box
  • Stato Conservazione: Buono
  • Spese Condominiali: € 800
  • Classe immobile : Civile
  • N° Camere : 2
  • N° Bagni : 1
  • N° Locali : 3.0
  • Terrazzo : N.D. mq
  • Cucina : Abitabile
  • Riscaldamento : Autonomo
  • Intero Edificio : No
  • N° livelli : 1
  • Piano : rialzato di 2

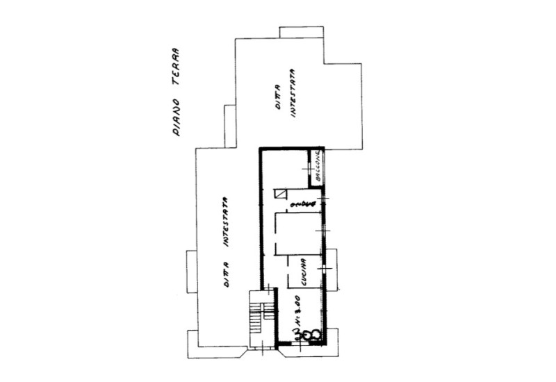
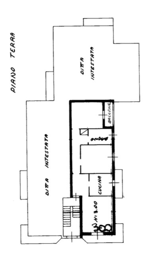
Planimetrie

DESCRIZIONE

Spazi ampi, luce naturale, pavimenti in parquet e quella sensazione di equilibrio che solo le case curate nel tempo sanno dare.

Qui trovi tutto ciò che serve a una famiglia per stare bene — comfort, praticità e serenità.

Siamo al piano rialzato di una piccola palazzina tenuta con grande attenzione nelle parti comuni.
All’interno, ti accoglie un ingresso funzionale che conduce a un soggiorno spazioso con balcone, una cucina abitabile con secondo balcone, e due camere matrimoniali con pavimenti in parquet, calde e accoglienti.
Il bagno finestrato con vasca aggiunge comfort alla quotidianità.

A completare la proprietà, cantina, garage singolo, doppi vetri in legno e aria condizionata nuova — tutto ciò che serve per vivere sereni, da subito.

Un appartamento perfetto per chi cerca tranquillità, comodità e spazio per la famiglia, senza lavori da fare e con la praticità della città a pochi passi.

Chiamaci oggi e vieni a vederla dal vivo: la tua nuova casa ti sta già aspettando.

Immagini Panoramiche

I NOSTRI RIFERIMENTI

Trading Casa è un’agenzia di intermediazione immobiliare con sede in Via Manfredi a Piacenza.

RICHIEDI INFORMAZIONI

Ho letto, compreso e accettato i termini e condizioni.

Ricevi immobili simili a questo da Trading Casa.
Questo sito è protetto da Google reCAPTCHA v3, Privacy Policy e Terms of Service di Google.
wharsapp
CHIAMA
RICHIEDI INFORMAZIONI