L’appartamento ideale per vivere sereni vicino alla città

Riferimento

T31710

Superficie

99 mq

N° Locali

3.0

N° Camere

2

N° Bagni

1

Prezzo

€ 138.000

DETTAGLI IMMOBILE

  • Tipo proprietà : Appartamento
  • Giardino : No
  • Località : Rottofreno
  • Classe Energetica : E
  • EPgl,nren : 206.1
  • Contratto : Vendita
  • Distanza dal centro : N.D. m
  • Posto Auto : Box
  • Stato Conservazione: Buono
  • Spese Condominiali: € 1300
  • Classe immobile : Civile
  • N° Camere : 2
  • N° Bagni : 1
  • N° Locali : 3.0
  • Terrazzo : N.D. mq
  • Cucina : Abitabile
  • Riscaldamento : Autonomo
  • Intero Edificio : No
  • N° livelli : 1
  • Piano : 1 di 2

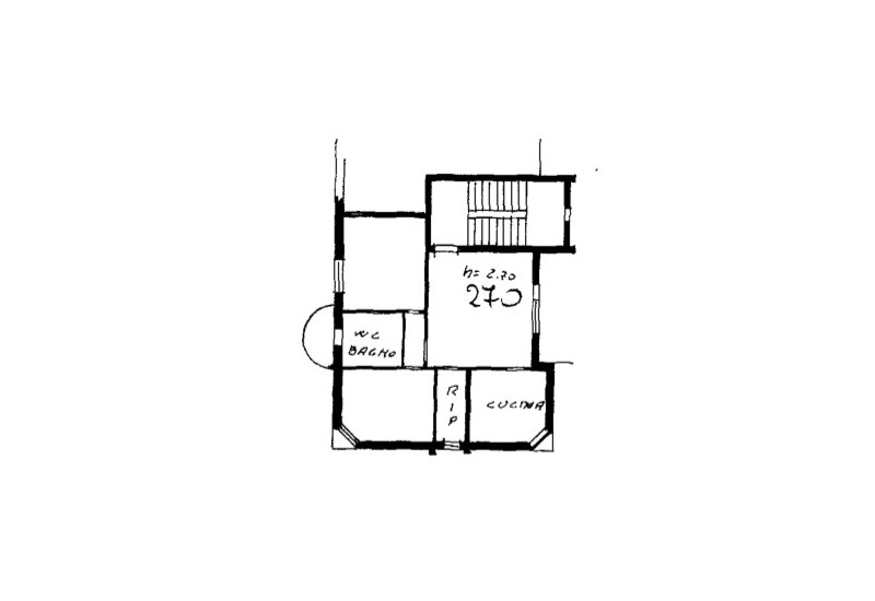
Planimetrie

DESCRIZIONE

Ogni ambiente è pensato per semplificare la vita quotidiana, in un paese servito e allo stesso tempo vicino alla città, questa soluzione è perfetta per iniziare un nuovo capitolo con tranquillità e organizzazione. È la classica casa che “funziona”, dove ogni stanza è utile e ogni dettaglio rende le giornate più leggere.

Ci troviamo in un contesto tranquillo, al primo piano. Appena entri, l’ingresso ti accompagna verso il soggiorno, un ambiente luminoso dove immaginare momenti condivisi, giochi dei bambini, cene in compagnia o semplicemente il relax della sera. La cucina separata ti permette di cucinare senza invadere la zona giorno, mantenendo ordine anche nelle giornate più dense di impegni.

La zona notte offre due camere ben proporzionate, ideali per creare un nido familiare sereno e organizzato. Il bagno è funzionale e comodo nel quotidiano, mentre i due balconi portano aria, luce e quella sensazione piacevole di affaccio all’esterno che rende l’appartamento ancora più vivibile.
La presenza del ripostiglio è un valore aggiunto importante, e volendo può essere trasformato in un secondo bagno, un’opportunità utile per chi immagina una gestione ancora più pratica dei ritmi familiari.

I serramenti in legno con doppio vetro e i due split dell’aria condizionata garantiscono benessere in ogni stagione, mentre cantina e box completano l’abitazione offrendo ulteriore organizzazione e la sicurezza di rientrare sempre con il posto auto.

Se vuoi una casa comoda, accogliente e ben collegata alla città, questa è una soluzione che merita di essere vista dal vivo.

Scrivici per fissare una visita: ti accompagniamo a scoprirla con calma.

I NOSTRI RIFERIMENTI

Trading Casa è un’agenzia di intermediazione immobiliare con sede in Via Manfredi a Piacenza.

RICHIEDI INFORMAZIONI

Ho letto, compreso e accettato i termini e condizioni.

Ricevi immobili simili a questo da Trading Casa.
Questo sito è protetto da Google reCAPTCHA v3, Privacy Policy e Terms of Service di Google.
wharsapp
CHIAMA
RICHIEDI INFORMAZIONI