La villa che dà respiro alla tua famiglia

Riferimento

T4748

Superficie

160 mq

N° Locali

4.0

N° Camere

3

N° Bagni

2

Prezzo

€ 249.000 239.000

DETTAGLI IMMOBILE

  • Tipo proprietà : Villa
  • Giardino : Privato
  • Località : Calendasco
  • Classe Energetica : C
  • EPgl,nren : 153.87
  • Contratto : Vendita
  • Distanza dal centro : N.D. m
  • Posto Auto : PostoAuto
  • Stato Conservazione: Buono Stato
  • Spese Condominiali: € N.D.
  • Classe immobile : Civile
  • N° Camere : 3
  • N° Bagni : 2
  • N° Locali : 4.0
  • Terrazzo : N.D. mq
  • Cucina : Abitabile
  • Riscaldamento : Autonomo
  • Intero Edificio : Si
  • N° livelli : 2

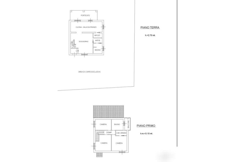
Planimetrie

DESCRIZIONE

Quando entri qui, senti subito quella sensazione rara delle case pensate per durare e per accogliere ogni momento di una vita familiare intensa, piena di movimento e di esigenze diverse. È la soluzione ideale per chi vuole ambienti ampi, ordine, praticità e un giardino vero, dove i bambini possono correre e gli adulti ritagliarsi momenti di tranquillità.

La villa, indipendente e libera su quattro lati, è immersa in un giardino curato che abbraccia tutta la casa e ti regala privacy, luce e la bellezza della natura sempre davanti agli occhi. Al piano terra il soggiorno luminoso diventa il fulcro della vita quotidiana, un ambiente dove ritrovarsi, parlare, accendere la musica o semplicemente rilassarsi. La cucina abitabile, con dispensa e uno spazio organizzativo prezioso, si apre direttamente sul portico coperto: un luogo protetto dove immaginare colazioni lente, cene d’estate, giochi e conversazioni all’aria aperta.

Sempre al piano terra trovi un bagno finestrato con doccia e un antibagno con armadiatura su misura, perfetto per mantenere ordine anche nelle giornate più dinamiche.

Al piano superiore la zona notte è pensata per una famiglia vera: camera matrimoniale accogliente, due camere doppie dove ciascuno può creare la propria dimensione e un bagno elegante con terrazzo, ideale per respirare aria fresca appena svegli. La lavanderia e la doccia walk-in completano il piano con una comodità che semplifica ogni routine.

La villa è stata costruita con vespaio anti-umidità e materiali di qualità, e questo si percepisce in ogni dettaglio: solidità, pulizia, benessere abitativo. È pronta da vivere, senza lavori, senza pensieri.

Se stai cercando una casa dove la tua famiglia possa allargare gli orizzonti e vivere davvero bene, questa è una di quelle occasioni che valgono una visita.

Scrivici per fissare un appuntamento: ti accompagniamo a scoprirla dal vivo.

Immagini Panoramiche

I NOSTRI RIFERIMENTI

Trading Casa è un’agenzia di intermediazione immobiliare con sede in Via Manfredi a Piacenza.

RICHIEDI INFORMAZIONI

Ho letto, compreso e accettato i termini e condizioni.

Ricevi immobili simili a questo da Trading Casa.
Questo sito è protetto da Google reCAPTCHA v3, Privacy Policy e Terms of Service di Google.
wharsapp
CHIAMA
RICHIEDI INFORMAZIONI