Villa indipendente con grande potenziale a caorso

Riferimento

T6101

Superficie

270 mq

N° Locali

6.0

N° Camere

4

N° Bagni

1

Prezzo

€ 110.000

DETTAGLI IMMOBILE

  • Tipo proprietà : Villa
  • Giardino : Privato
  • Località : Caorso
  • Classe Energetica : G
  • EPgl,nren : 416.45
  • Contratto : Vendita
  • Distanza dal centro : N.D. m
  • Posto Auto : Box
  • Stato Conservazione: Da Ristrutturare
  • Spese Condominiali: € N.D.
  • Classe immobile : Civile
  • N° Camere : 4
  • N° Bagni : 1
  • N° Locali : 6.0
  • Terrazzo : N.D. mq
  • Cucina : Abitabile
  • Riscaldamento : Autonomo
  • Intero Edificio : Si
  • N° livelli : 2

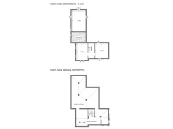
Planimetrie

DESCRIZIONE

Sei alla ricerca di qualcosa che oggi è sempre più raro: indipendenza totale, grandi spazi e la possibilità di creare una casa su misura. Questa villa d’epoca racchiude tutto questo ed è una soluzione perfetta per chi guarda oltre l’immediato e vede il potenziale.

Zona Caorso: la proprietà è una villa indipendente su quattro lati, inserita in un contesto tranquillo e ben servito. La distribuzione degli spazi è generosa e si presta a diverse soluzioni abitative, rendendola ideale per una famiglia numerosa o per due famiglie che vogliono vivere vicine mantenendo la propria autonomia.

Al piano terra troviamo l’ingresso, il soggiorno, la sala da pranzo e la cucina, ambienti ampi e separati, tipici delle case di una volta, che permettono di creare una zona giorno importante e conviviale.
Al primo piano si sviluppa la zona notte, con tre camere da letto e un bagno, spazi veri, facilmente ridistribuibili secondo le esigenze moderne.

Un secondo ingresso indipendente, con due vani aggiuntivi e servizi, affiancato da un portico, apre a ulteriori possibilità: seconda unità abitativa, studio professionale, zona ospiti o soluzione per genitori e figli.

A completare la proprietà troviamo una dependance di circa 80 mq, con autorimessa e la possibilità di realizzare ulteriori spazi abitabili. Un valore aggiunto enorme per chi cerca flessibilità, indipendenza e metrature importanti.

L’area verde di pertinenza circonda la villa, offrendo spazio, respiro e la possibilità di vivere l’esterno in modo pieno, ideale per famiglie, bambini o semplicemente per chi ama il verde.

L’immobile è da ristrutturare completamente, ad eccezione di tetto e solai, che sono stati rivisti di recente, con lattoneria nuova. Una base strutturale già sistemata, perfetta per concentrarsi su una ristrutturazione personalizzata, valorizzando il carattere della casa e adattandola alle esigenze di oggi.

Questa non è una casa “pronta”, ma è una grande opportunità per chi vuole costruire qualcosa di importante, duraturo e su misura, in un paese comodo e ben collegato.

Contattaci per fissare una visita e valutare insieme tutto il potenziale di questa proprietà unica.

I NOSTRI RIFERIMENTI

Trading Casa è un’agenzia di intermediazione immobiliare con sede in Via Manfredi a Piacenza.

RICHIEDI INFORMAZIONI

Ho letto, compreso e accettato i termini e condizioni.

Ricevi immobili simili a questo da Trading Casa.
Questo sito è protetto da Google reCAPTCHA v3, Privacy Policy e Terms of Service di Google.
wharsapp
CHIAMA
RICHIEDI INFORMAZIONI