La tua nuova casa ampia e pronta da vivere

Riferimento

T545

Superficie

190 mq

N° Locali

5.0

N° Camere

4

N° Bagni

2

Prezzo

€ 180.000

DETTAGLI IMMOBILE

  • Tipo proprietà : Villetta
  • Giardino : Privato
  • Località : Caorso
  • Classe Energetica : E
  • EPgl,nren : 143.16
  • Contratto : Vendita
  • Distanza dal centro : N.D. m
  • Posto Auto : No
  • Stato Conservazione: Buono Stato
  • Spese Condominiali: € N.D.
  • Classe immobile : Civile
  • N° Camere : 4
  • N° Bagni : 2
  • N° Locali : 5.0
  • Terrazzo : N.D. mq
  • Cucina : Abitabile
  • Riscaldamento : Autonomo
  • Intero Edificio : Si
  • N° livelli : 3

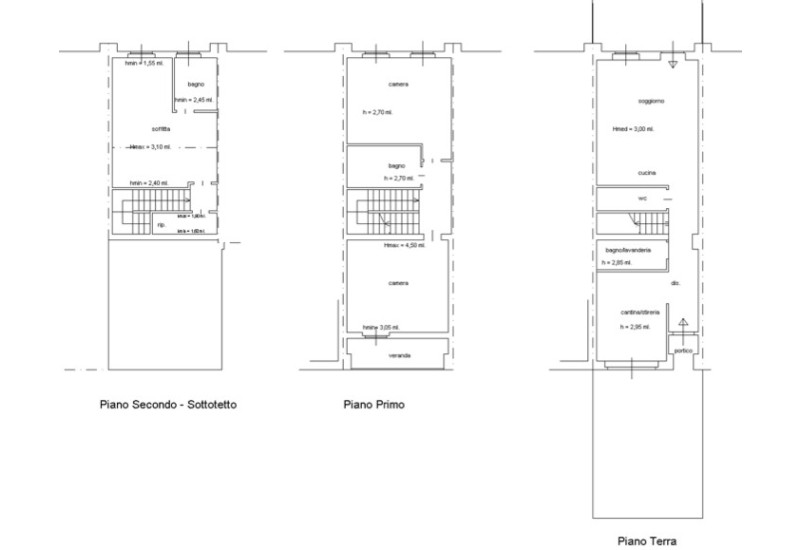
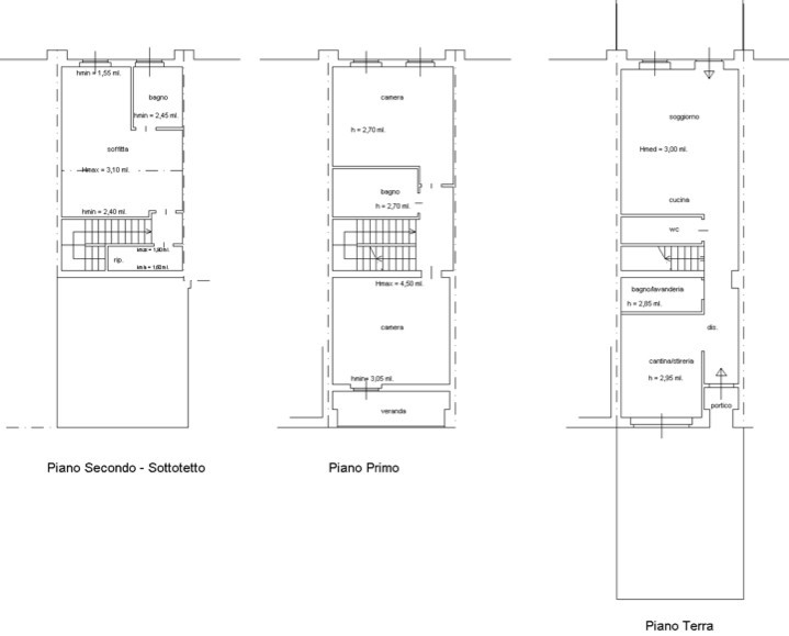
Planimetrie

DESCRIZIONE

Quando la famiglia cresce, cresce anche il bisogno di una casa che sappia tenere insieme tutto: le giornate piene, le risate, i momenti di tranquillità e quelli più movimentati. Una casa capace di dare respiro a ognuno, senza mai far sentire stretti. Questa villetta recente è proprio quel tipo di soluzione: grande, accogliente, ordinata, ideale per chi vuole vivere fuori città ma restare vicino a tutto ciò che serve.

Al piano terra ti accoglie un salone ampio e luminoso con cucina a vista, il cuore pulsante della vita quotidiana: pranzi, giochi, compiti, serate insieme. Accanto trovi un secondo soggiorno — utilizzabile anche come camera da letto — e un bagno, utile per gestire con ordine la giornata.

Il primo piano ospita due camere matrimoniali con accesso al terrazzino, un luogo perfetto per respirare aria fresca al mattino o ritagliarsi un attimo di quiete la sera.
Salendo ancora, la mansarda diventa un vero valore aggiunto: una grande stanza matrimoniale, un bagno e un ripostiglio, ideale come suite privata, zona ragazzi o ambiente jolly da adattare alle esigenze della famiglia.

All’esterno, il giardino e il portico invitano a vivere anche l’aria aperta: pranzi, giochi dei bambini, momenti di relax. Il cortile completa la parte outdoor, mentre il garage di 80 mq è una rarità che permette di gestire auto disponibile a parte, hobby, attrezzature e tutto ciò che serve con ordine.

La casa viene venduta arredata, con ottime finiture e pronta per essere abitata sin da subito.
La vendita avviene per trasferimento al Sud: un passaggio che apre l’occasione perfetta per chi cerca una casa grande e subito disponibile.

Se desideri una villa dove la tua famiglia possa muoversi con libertà, crescere e vivere bene ogni giorno, questa è una soluzione che merita di essere vista.

Contattaci ora per fissare una visita: ti accompagniamo a scoprirla dal vivo.

I NOSTRI RIFERIMENTI

Trading Casa è un’agenzia di intermediazione immobiliare con sede in Via Manfredi a Piacenza.

RICHIEDI INFORMAZIONI

Ho letto, compreso e accettato i termini e condizioni.

Ricevi immobili simili a questo da Trading Casa.
Questo sito è protetto da Google reCAPTCHA v3, Privacy Policy e Terms of Service di Google.
wharsapp
CHIAMA
RICHIEDI INFORMAZIONI