Villa ristrutturata pronta per la tua famiglia

Riferimento

T4788

Superficie

290 mq

N° Locali

5.0

N° Camere

4

N° Bagni

4

Prezzo

€ 390.000

DETTAGLI IMMOBILE

  • Tipo proprietà : Villa
  • Giardino : Privato
  • Località : Coli
  • Classe Energetica : A3
  • EPgl,nren : 38.99
  • Contratto : Vendita
  • Distanza dal centro : N.D. m
  • Posto Auto : Box
  • Stato Conservazione: Finemente Ristrutturato
  • Spese Condominiali: € N.D.
  • Classe immobile : Civile
  • N° Camere : 4
  • N° Bagni : 4
  • N° Locali : 5.0
  • Terrazzo : N.D. mq
  • Cucina : A vista
  • Riscaldamento : Autonomo
  • Intero Edificio : Si
  • N° livelli : 2

DESCRIZIONE

Quando scegli di vivere in collina, non stai cercando solo una casa: stai cercando spazio, silenzio, qualità della vita e la tranquillità di sapere che tutto è già al suo posto. Questa villa è pensata proprio per chi vuole allontanarsi dalla città senza rinunciare a nulla.

La proprietà è libera su tre lati ed è stata recentemente ristrutturata, con grande attenzione all’efficienza e al comfort abitativo. È una casa solida, moderna e pronta, ideale per una famiglia che desidera vivere ogni giorno in un contesto naturale, senza dover affrontare lavori o adattamenti.

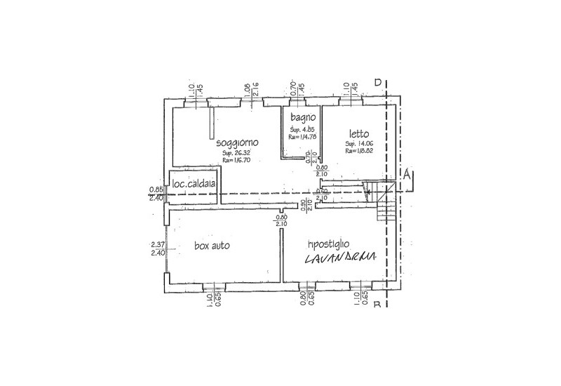
Dal piano rialzato si accede a un disimpegno che accompagna in un ampio open space con zona cottura e soggiorno: un ambiente luminoso, accogliente e perfetto per la vita quotidiana. Su questo stesso livello trovano spazio due camere da letto e doppi servizi, una combinazione che rende la gestione familiare pratica e funzionale.

Dalla zona giorno, una scala in legno conduce al piano sottotetto, dove sono presenti altri due ambienti e un ulteriore servizio. Spazi versatili, ideali come camere per i figli, studio, area relax o stanze per gli ospiti, capaci di adattarsi alle esigenze che cambiano nel tempo.

Al piano terra, collegato tramite scala interna, si sviluppa un’ulteriore zona abitativa con seconda cucina, una camera e un servizio. Una soluzione perfetta per chi desidera ambienti indipendenti, per lavorare da casa, ospitare familiari o semplicemente avere spazi separati e ben organizzati. Dal disimpegno si accede direttamente alla cantina e all’autorimessa, rendendo la casa estremamente pratica nella vita di tutti i giorni.

Le finiture sono nuove, la classe energetica è elevata e la presenza della VMC garantisce un costante ricambio d’aria e un comfort abitativo superiore, fondamentale per chi vive stabilmente in una casa immersa nel verde, presenza di fotovoltaico da 6 kw con accumulo da 15, caldaia a pompa di calore sia per il riscaldamento che il sanitario, combustione a pellet.

All’esterno, il valore aggiunto che fa la differenza: un giardino di circa 2.000 mq, uno spazio ampio, riservato e naturale, dove vivere all’aperto, far crescere i figli, coltivare passioni o semplicemente godersi il silenzio e il panorama della collina.

Questa è una casa pensata per vivere bene ogni giorno, lontano dalla città ma con tutto ciò di cui una famiglia può aver bisogno: spazio, efficienza, funzionalità e qualità della vita.

Contattaci per fissare una visita e capire se questa può diventare la tua nuova casa in collina.

Immagini Panoramiche

I NOSTRI RIFERIMENTI

Trading Casa è un’agenzia di intermediazione immobiliare con sede in Via Manfredi a Piacenza.

RICHIEDI INFORMAZIONI

Ho letto, compreso e accettato i termini e condizioni.

Ricevi immobili simili a questo da Trading Casa.
Questo sito è protetto da Google reCAPTCHA v3, Privacy Policy e Terms of Service di Google.
wharsapp
CHIAMA
RICHIEDI INFORMAZIONI