La villa ideale per chi vuole davvero spazio e libertà

Riferimento

T5175

Superficie

170 mq

N° Locali

5.0

N° Camere

4

N° Bagni

3

Prezzo

€ 395.000

DETTAGLI IMMOBILE

  • Tipo proprietà : Villa
  • Giardino : Privato
  • Località : Gossolengo
  • Classe Energetica : E
  • EPgl,nren : 157.67
  • Contratto : Vendita
  • Distanza dal centro : N.D. m
  • Posto Auto : Box
  • Stato Conservazione: Buono Stato
  • Spese Condominiali: € N.D.
  • Classe immobile : Civile
  • N° Camere : 4
  • N° Bagni : 3
  • N° Locali : 5.0
  • Terrazzo : N.D. mq
  • Cucina : Abitabile
  • Riscaldamento : Autonomo
  • Intero Edificio : Si
  • N° livelli : 2

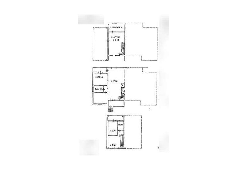
Planimetrie

DESCRIZIONE

Servono ambienti ampi, pratici, vivibili ogni giorno? Questa villa del 2005 è pensata proprio per chi non vuole più scendere a compromessi.

Al piano terra ti accoglie una luminosa zona giorno in open space: uno spazio fluido, perfetto per cucinare, chiacchierare, rilassarsi e vivere davvero la casa. La zona notte ospita una camera matrimoniale, una cameretta, un bagno con doccia e un comodo ripostiglio.

Salendo al primo piano trovi altre due camere matrimoniali e il secondo bagno, anch’esso con doccia: ambienti ampi e funzionali ideali per famiglie numerose, ospiti o chi ha bisogno di spazi separati.

Il piano seminterrato è un vero valore aggiunto: una grande taverna con cucina, cantinetta, lavanderia e ulteriore bagno. Perfetta per cene, feste, tempo libero o semplicemente per ricavare un luogo dove staccare dal resto della casa.

All’esterno, tutto quello che fa la differenza: box doppio in lunghezza, ampio cortile, giardino curato e una splendida piscina interrata che trasforma ogni estate in una vacanza senza muoverti da casa.

Una proprietà completa, pensata per chi vuole spazio, comodità e la libertà di vivere ogni ambiente al massimo.

Vuoi scoprire se può diventare la tua prossima casa? Chiamaci e fissiamo una visita: merita di essere vista dal vivo.

Immagini Panoramiche

I NOSTRI RIFERIMENTI

Trading Casa è un’agenzia di intermediazione immobiliare con sede in Via Manfredi a Piacenza.

RICHIEDI INFORMAZIONI

Ho letto, compreso e accettato i termini e condizioni.

Ricevi immobili simili a questo da Trading Casa.
Questo sito è protetto da Google reCAPTCHA v3, Privacy Policy e Terms of Service di Google.
wharsapp
CHIAMA
RICHIEDI INFORMAZIONI