La casa pronta in una delle zone più comode

Riferimento

T31735

Superficie

107 mq

N° Locali

3.0

N° Camere

2

N° Bagni

1

Prezzo

€ 185.000 170.000

DETTAGLI IMMOBILE

  • Tipo proprietà : Appartamento
  • Giardino : No
  • Località : Piacenza
  • Classe Energetica : E
  • EPgl,nren : 188.11
  • Contratto : Vendita
  • Distanza dal centro : N.D. m
  • Posto Auto : No
  • Stato Conservazione: Buono Stato
  • Spese Condominiali: € 1200
  • Classe immobile : Civile
  • N° Camere : 2
  • N° Bagni : 1
  • N° Locali : 3.0
  • Terrazzo : N.D. mq
  • Cucina : Abitabile
  • Riscaldamento : Autonomo
  • Intero Edificio : No
  • N° livelli : 1
  • Piano : 2 di 3

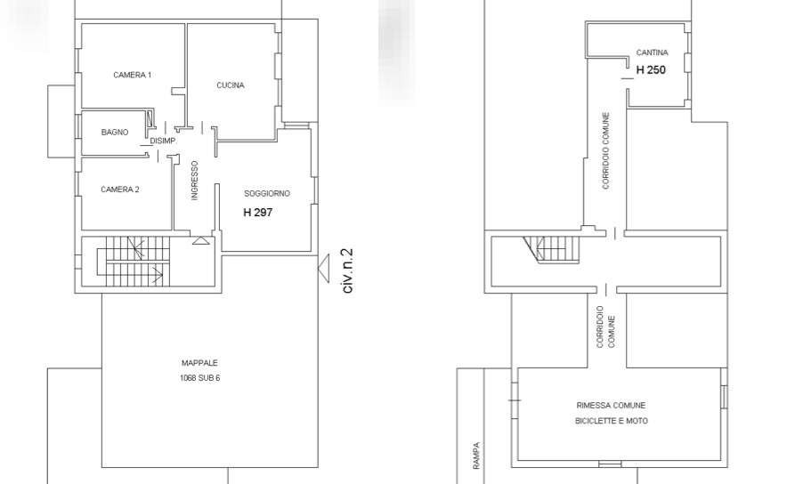
Planimetrie

DESCRIZIONE

La casa pronta che cercavi in una zona davvero comoda

Quando scegli casa, la zona conta quanto l’appartamento. Qui ti trovi in un contesto servito, ben abitato e facile da vivere ogni giorno, dove tutto è a portata di mano e rientrare a casa è sempre piacevole. Questo appartamento è la soluzione ideale per una coppia o una famiglia che vuole una casa già sistemata, senza lavori da affrontare.

Siamo al secondo piano e l’ingresso accompagna in modo naturale verso il soggiorno, un ambiente luminoso e accogliente dove ritrovarsi a fine giornata. La cucina abitabile è separata, pratica e funzionale, pensata per essere vissuta davvero, tra pranzi veloci e cene in tranquillità.

La zona notte offre due camere da letto ben distribuite, adatte sia a una coppia che a una famiglia con un figlio. Il bagno è comodo e ordinato, mentre i due balconi portano luce e aria agli ambienti, rendendo la casa ancora più piacevole da vivere.

L’appartamento è stato completamente ristrutturato nel 2022: serramenti in legno con doppio vetro, caldaia nuova a condensazione e split per l’aria condizionata garantiscono efficienza e praticità in ogni stagione. A completare la soluzione c’è una cantina di proprietà, sempre utile per organizzare meglio la casa.

Se cerchi una casa pronta, in una zona giusta e senza pensieri per il futuro, questa è una soluzione da vedere.

Contattaci per fissare una visita e scoprirla dal vivo.


Immagini Panoramiche

I NOSTRI RIFERIMENTI

Trading Casa è un’agenzia di intermediazione immobiliare con sede in Via Manfredi a Piacenza.

RICHIEDI INFORMAZIONI

Ho letto, compreso e accettato i termini e condizioni.

Ricevi immobili simili a questo da Trading Casa.
Questo sito è protetto da Google reCAPTCHA v3, Privacy Policy e Terms of Service di Google.
wharsapp
CHIAMA
RICHIEDI INFORMAZIONI