Spazi grandi e possibilità reali di personalizzazione

Riferimento

T31739

Superficie

133 mq

N° Locali

3.0

N° Camere

2

N° Bagni

1

Prezzo

€ 165.000

DETTAGLI IMMOBILE

  • Tipo proprietà : Appartamento
  • Giardino : Comune
  • Località : Piacenza
  • Classe Energetica : E
  • EPgl,nren : 172.11
  • Contratto : Vendita
  • Distanza dal centro : N.D. m
  • Posto Auto : Box
  • Stato Conservazione: Buono
  • Spese Condominiali: € 3500
  • Classe immobile : Civile
  • N° Camere : 2
  • N° Bagni : 1
  • N° Locali : 3.0
  • Terrazzo : N.D. mq
  • Cucina : Abitabile
  • Riscaldamento : Centralizzato
  • Intero Edificio : No
  • N° livelli : 1
  • Piano : 3 di 5

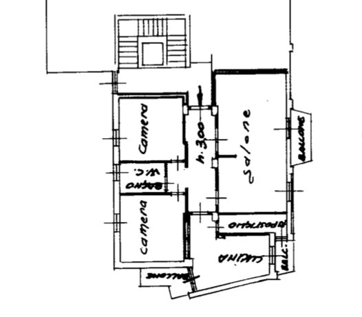
Planimetrie

DESCRIZIONE

Ampi ambienti da modellare secondo il tuo stile di vita

Ci sono case che offrono qualcosa in più: non solo metrature generose, ma la libertà di adattarle davvero alle proprie esigenze. Questo appartamento è pensato per chi cerca ambienti ampi, luminosi e facilmente trasformabili, in un contesto tranquillo dove vivere con serenità ogni giorno.

L’ingresso introduce a un soggiorno doppio, un ambiente arioso e accogliente che diventa il cuore della casa. Qui hai la possibilità concreta di ridisegnare gli spazi: il doppio soggiorno permette infatti di ricavare una terza camera, trasformando l’appartamento in un quadrilocale senza stravolgere la distribuzione. La cucina è separata e funzionale, ideale per chi ama organizzare la zona giorno in modo ordinato.

La zona notte offre due camere da letto ben proporzionate e un bagno comodo. Il ripostiglio è particolarmente ampio e rappresenta un altro grande punto di forza: volendo, può essere trasformato in un secondo bagno, rendendo la casa ancora più pratica per una famiglia o per chi desidera maggiore comfort nella gestione quotidiana.

La tripla esposizione regala luce durante tutta la giornata e i tre balconi offrono sfoghi esterni utili e piacevoli. I serramenti in legno con doppio vetro, le zanzariere su tutte le finestre e i tre split Daikin installati di recente contribuiscono a rendere l’abitazione vivibile in ogni stagione. L’impianto di antifurto volumetrico e la porta blindata aggiungono sicurezza e tranquillità.

Cantina e box auto ampio di proprietà completano la soluzione, insieme al giardino condominiale che arricchisce ulteriormente il contesto.

Questa è la casa ideale per chi vuole partire da una base solida, ampia e luminosa, e costruire nel tempo uno spazio davvero su misura.

Contattaci per fissare una visita e scoprire dal vivo tutto il potenziale di questa soluzione.

I NOSTRI RIFERIMENTI

Trading Casa è un’agenzia di intermediazione immobiliare con sede in Via Manfredi a Piacenza.

RICHIEDI INFORMAZIONI

Ho letto, compreso e accettato i termini e condizioni.

Ricevi immobili simili a questo da Trading Casa.
Questo sito è protetto da Google reCAPTCHA v3, Privacy Policy e Terms of Service di Google.
wharsapp
CHIAMA
RICHIEDI INFORMAZIONI