Entri, vivi, respiri: casa già pronta davvero

Riferimento

T31800

Superficie

106 mq

N° Locali

3.0

N° Camere

2

N° Bagni

1

Prezzo

€ 250.000

DETTAGLI IMMOBILE

  • Tipo proprietà : Appartamento
  • Giardino : N.D.
  • Località : Piacenza
  • Classe Energetica : E
  • EPgl,nren : 174.16
  • Contratto : Vendita
  • Distanza dal centro : N.D. m
  • Posto Auto : N.D.
  • Stato Conservazione: Buone Condizioni
  • Spese Condominiali: € 1800
  • Classe immobile : Civile
  • N° Camere : 2
  • N° Bagni : 1
  • N° Locali : 3.0
  • Terrazzo : N.D. mq
  • Cucina : Abitabile
  • Riscaldamento : Centralizzato
  • Intero Edificio : No
  • N° livelli : N.D.
  • Piano : 2 di 5

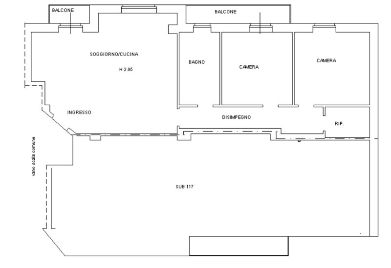
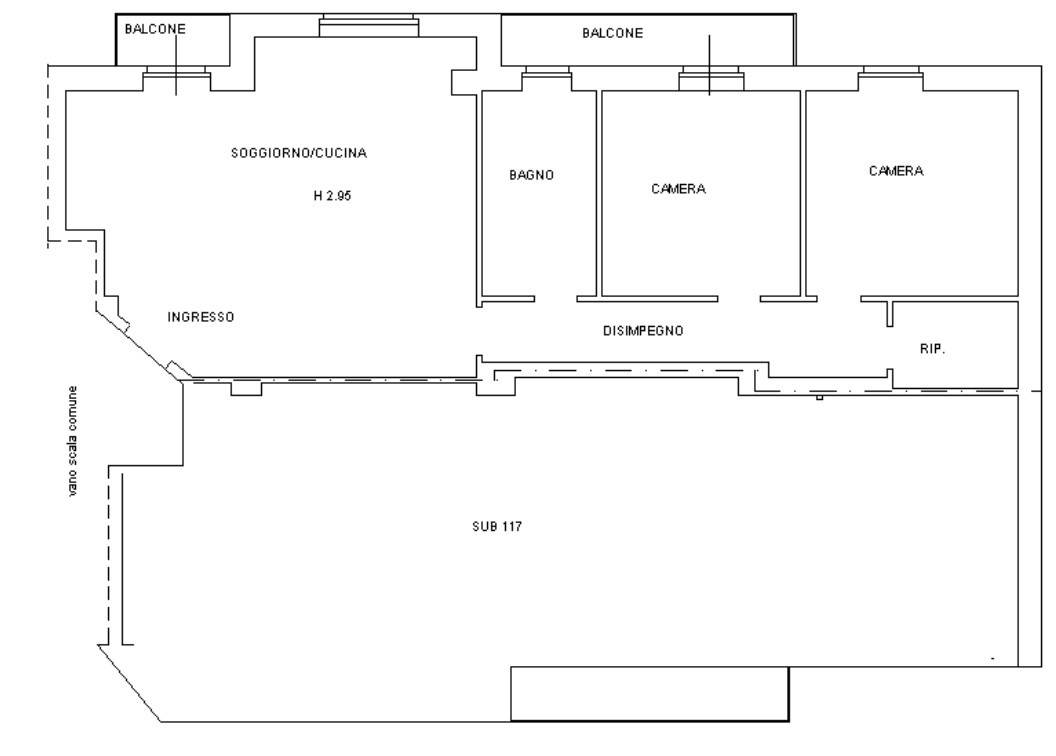
Planimetrie

DESCRIZIONE

Qui non devi immaginare nulla. Devi solo aprire la porta e capire che è già tutto al suo posto.

Succede quando ogni dettaglio è stato rifatto con criterio: cammini sul pavimento nuovo, la luce entra piena dall’open space e senti subito quella sensazione rara di casa “giusta”, senza lavori da programmare, senza sorprese da gestire.

La zona giorno è pensata per la vita vera: cucina e soggiorno dialogano, ti muovi con naturalezza mentre prepari cena, chiacchieri, vivi. Il balcone diventa il tuo sfogo quotidiano, quello dove esci un attimo e stacchi.

Le due camere matrimoniali cambiano completamente le regole. Non devi adattarti: ognuno ha il suo spazio reale, che sia per crescere una famiglia o per avere finalmente ordine e respiro nella routine. E quando inizi a organizzare tutto, lo sgabuzzino diventa quell’alleato silenzioso che ti semplifica le giornate.

Il bagno è nuovo, pulito, essenziale. Gli infissi in doppio vetro ti fanno dimenticare il rumore fuori. Le porte, la cucina, ogni elemento è già stato scelto per te con un obiettivo preciso: eliminare problemi, non crearne.

E poi c’è il garage. Non uno qualsiasi. Qui ci entrano davvero auto e scooter insieme, senza incastri impossibili. E quando torni a casa la sera e parcheggi senza stress, capisci quanto vale.

La posizione ti semplifica la vita ogni giorno: esci, fai la spesa a piedi, accompagni tuo figlio senza incastrare mille tragitti, vivi il quartiere invece di subirlo.

Questa è una casa che ti fa risparmiare tempo, energie e pensieri fin dal primo giorno.

Se stai cercando un posto dove entrare e iniziare subito a vivere senza complicazioni, chiamaci e vieni a sentirla dal vivo. Alcune case vanno capite di persona. Questa è una di quelle.

I NOSTRI RIFERIMENTI

Trading Casa è un’agenzia di intermediazione immobiliare con sede in Via Manfredi a Piacenza.

RICHIEDI INFORMAZIONI

Ho letto, compreso e accettato i termini e condizioni.

Ricevi immobili simili a questo da Trading Casa.
Questo sito è protetto da Google reCAPTCHA v3, Privacy Policy e Terms of Service di Google.
wharsapp
CHIAMA
RICHIEDI INFORMAZIONI