Villa indipendente con cortile nel cuore di piacenza

Riferimento

T4741

Superficie

280 mq

N° Locali

4.0

N° Camere

4

N° Bagni

3

Prezzo

€ 350.000

DETTAGLI IMMOBILE

  • Tipo proprietà : Villetta a Schiera
  • Giardino : Privato
  • Località : Piacenza
  • Classe Energetica : F
  • EPgl,nren : 277.62
  • Contratto : Vendita
  • Distanza dal centro : N.D. m
  • Posto Auto : Box
  • Stato Conservazione: Buono Stato
  • Spese Condominiali: € N.D.
  • Classe immobile : Civile
  • N° Camere : 4
  • N° Bagni : 3
  • N° Locali : 4.0
  • Terrazzo : N.D. mq
  • Cucina : Abitabile
  • Riscaldamento : Autonomo
  • Intero Edificio : Si
  • N° livelli : 3

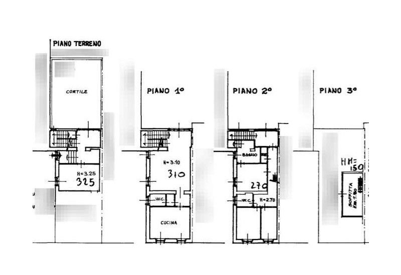
Planimetrie

DESCRIZIONE

Dove l’eleganza incontra la libertà

Immagina di vivere nel cuore di Piacenza, ma con tutta la privacy e l’indipendenza che solo una villa può offrirti.
Un luogo dove ogni giornata inizia con la luce che filtra nel tuo salone e si conclude nel silenzio rilassante del tuo cortile privato — un angolo verde con una fontana che rende unica ogni serata all’aperto.

Questa villa indipendente unisce il fascino del centro storico alla comodità di spazi ampi e funzionali: un grande soggiorno luminoso, una cucina abitabile perfetta per la vita in famiglia, tre camere da letto e tre bagni dal gusto raffinato.
Completano la soluzione un box auto privato e una cantina spaziosa.

Una casa che rappresenta il perfetto equilibrio tra comfort moderno e charme cittadino, pensata per chi desidera vivere nel centro di Piacenza senza rinunciare alla propria libertà.

Chiama ora e scopri questa villa: la tua nuova vita indipendente nel cuore della città ti aspetta.

I NOSTRI RIFERIMENTI

Trading Casa è un’agenzia di intermediazione immobiliare con sede in Via Manfredi a Piacenza.

RICHIEDI INFORMAZIONI

Ho letto, compreso e accettato i termini e condizioni.

Ricevi immobili simili a questo da Trading Casa.
Questo sito è protetto da Google reCAPTCHA v3, Privacy Policy e Terms of Service di Google.
wharsapp
CHIAMA
RICHIEDI INFORMAZIONI