Terrazzo grande, vita semplice

Riferimento

T31813

Superficie

70 mq

N° Locali

3.0

N° Camere

2

N° Bagni

1

Prezzo

€ 90.000

DETTAGLI IMMOBILE

  • Tipo proprietà : Appartamento
  • Giardino : No
  • Località : San Giorgio Piacentino
  • Classe Energetica : G
  • EPgl,nren : 346.64
  • Contratto : Vendita
  • Distanza dal centro : N.D. m
  • Posto Auto : Box
  • Stato Conservazione: Abitabile
  • Spese Condominiali: € N.D.
  • Classe immobile : Civile
  • N° Camere : 2
  • N° Bagni : 1
  • N° Locali : 3.0
  • Terrazzo : 60 mq
  • Cucina : Abitabile
  • Riscaldamento : Autonomo
  • Intero Edificio : No
  • N° livelli : 1
  • Piano : 1 di 1

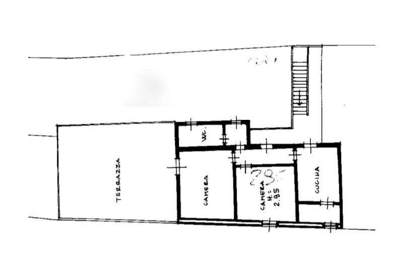
Planimetrie

DESCRIZIONE

Se quello che cerchi non è più metratura… ma un posto dove stare bene davvero, Qui succede qualcosa di diverso: apri la porta e sai già che la giornata non finirà sul divano, ma fuori, sul tuo terrazzo. Sessanta metri dove il tempo rallenta, dove puoi mangiare all’aperto, leggere, invitare qualcuno o semplicemente goderti un momento tuo.

L’interno è pratico, concreto. L’ingresso accompagna verso il tinello con cucinotto, perfetto per mantenere ordine e funzionalità. Il soggiorno, all’occorrenza, si trasforma facilmente in una seconda camera, dando una flessibilità rara per questa tipologia.

La camera matrimoniale è accogliente e tranquilla, mentre il bagno serve la casa in modo semplice e funzionale. Le finiture dell’epoca sono ben tenute, e questo ti permette di entrare subito e decidere con calma se e come personalizzare.

Cantina e box comodo completano una soluzione che nella vita quotidiana fa davvero la differenza, perché tutto è al posto giusto.

È la scelta ideale se cerchi qualcosa di gestibile, senza eccessi, ma con quel valore in più che non si trova facilmente: uno sfogo esterno vero, da vivere ogni giorno.

Quando la vedrai, capirai subito che quel terrazzo non è un dettaglio… è il motivo per cui la sceglierai.

Soluzioni così, con uno spazio esterno di questa dimensione, spariscono velocemente. Contattami ora e vieni a scoprirla dal vivo.

I NOSTRI RIFERIMENTI

Trading Casa è un’agenzia di intermediazione immobiliare con sede in Via Manfredi a Piacenza.

RICHIEDI INFORMAZIONI

Ho letto, compreso e accettato i termini e condizioni.

Ricevi immobili simili a questo da Trading Casa.
Questo sito è protetto da Google reCAPTCHA v3, Privacy Policy e Terms of Service di Google.
wharsapp
CHIAMA
RICHIEDI INFORMAZIONI